人造(zao)板企業的熱能中心是以(yi)企業生產(chan)過程中所產(chan)的工(gong)業(ye)廢(fei)料(liao)、鋸木(mu)(mu)、切(qie)片(pian)、樹皮、木(mu)(mu)屑(xie)以及砂光粉等作為主要燃料(liao)經燃燒爐燃燒而產生的熱(re)能(如熱風(feng),熱油,蒸(zheng)汽等(deng)多種熱載體)供給企(qi)業生產用熱(re)的(de)熱(re)能供給設備。
熱能中(zhong)心具(ju)有高效(xiao),節能,環保,自動化(hua)成(cheng)度高等優點,系統(tong)在處理廢料的同(tong)時,還(huan)解決了生產所需的熱能(neng)消(xiao)耗,因而熱能中心已(yi)成為人造板(ban)制造的(de)最佳方案。

這(zhe)是年(nian)產 10 萬 m3 中密度纖(xian)維(wei)板廠(chang)熱能中心(xin)工藝設計方案。
該方案由高(gao)溫煙氣全部與導(dao)熱(re)(re)油(you)爐進行熱(re)(re)量交換(huan)產生高(gao)溫導(dao)熱(re)(re)油(you)。高(gao)溫導(dao)熱(re)(re)油(you)的
一(yi)部(bu)分供(gong)熱壓機使用;高溫導(dao)熱油的一部分與換熱器(蒸汽(qi)發生器)交(jiao)換產生蒸汽、供熱
磨機、制膠及其(qi)它(ta)所需(xu)的(de)蒸汽的(de)用熱設備使(shi)用;部分(fen)高溫導熱油與換熱器交換產生熱風與
熱(re)油爐所產生的煙氣經過二(er)級(ji)除塵后(hou)可直接(jie)送給纖維(wei)干燥使用(yong)。

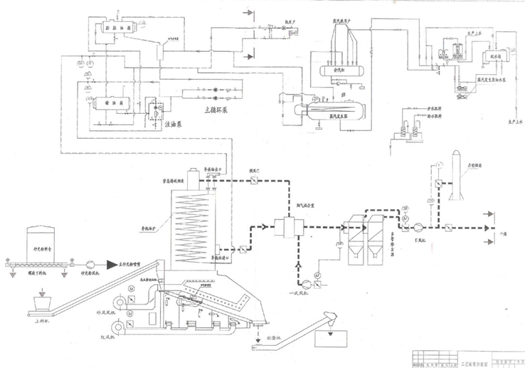
這(zhe)是年(nian)產 20 萬 m3 中(zhong)密度纖維板廠熱能中(zhong)心(xin)工(gong)藝設(she)計(ji)方案。
該方案(an)由燃(ran)燒(shao)爐燃(ran)燒(shao)所產生(sheng)的熱能(高溫煙氣):一路直(zhi)接加(jia)熱(re)導(dao)熱(re)油爐盤管產生高(gao)溫(wen)導(dao)熱(re)油,高溫導熱油供(gong)熱壓機,一路與余熱(re)(re)(re)鍋爐進(jin)行熱(re)(re)(re)交(jiao)換(huan)產生蒸(zheng)汽供熱(re)(re)(re)磨(mo)機、制膠及其它所需的蒸(zheng)汽設(she)備(bei),一路可迚行煙氣(qi)混合(he)經過二(er)級除(chu)塵調溫后供干(gan)燥機使用,有少量余熱排(pai)放(fang)。

熱能中(zhong)心(xin)的(de)系(xi)統構成是由:燃料供給系(xi)統, 燃(ran)燒室燃(ran)燒系統, 導熱油(you)爐熱油(you)供(gong)熱系(xi)統(tong),蒸汽供(gong)熱系統, 煙氣供熱系統(tong)及控制系統(tong)等(deng)幾大部(bu)分組(zu)成(cheng)。
為滿足生產能力(li)為 20000~2000000M3/a 人造板生產線的(de)用熱(re)需求,目(mu)前,公司可以提供 5-70MW/h 能源工(gong)廠的設計制(zhi)造,并(bing)進行指導安裝和調試實行交(jiao)鑰匙工(gong)程。
提供 1.從有機載熱體(高溫熱油)、蒸汽、水到潔(jie)凈煙氣或(huo)熱風的(de)各種(zhong)組合方案(an)
提供 2. 從燃料制備,燃(ran)燒系統(tong)生產線(xian)各用熱設備的負荷調(diao)節系統(tong)
(如熱油(you),熱水二(er)次循 環(huan)系統,煙氣混合系(xi)統)的全套設計方案;
提供(gong) 3. 從技術交(jiao)流,設計方案及優化,設備(bei)制造,安裝調試(shi),交付運(yun)行(xing)到(dao)售(shou)后跟蹤全(quan)過程服務。

熱能中(zhong)心規格一(yi)覽表
MDF, HDF | 年產 | 年產 | 年產 | 年產 | 年產(chan) | 年(nian)產 |
年(nian)產(chan)量生(sheng)產(chan)線 | 3 萬 m3 | 5 萬 m3 | 8 萬 m3 | 10 萬 m3 | 15 萬 m3 | 20 萬 m3 |
總 功 熱 量104kcal/h | 800 | 1200 | 1800 | 2100 | 3300 | 4200 |
A-1 熱油額供熱量104kcal/h | 80-100 | 120-160 | 200-300 | 350-450 | 500-550 | 600-700 |
A-2 蒸(zheng)汽額定(ding)供熱量 t/h | 4 | 6 | 8 | 10 | 16 | 20 |
A-3 煙(yan)氣額定供熱量104kcal/h | 460 | 680 | 980 | 1000 | 1850 | 2240 |
注:非標生產線(xian)可按用戶要求特殊設計。
本公司針(zhen)對(dui)木材工業,特別是(shi)人造板行業不同用戶的(de)具體用熱需(xu)求(qiu),專門(men)設計,制造(zao)完(wan)全適(shi)合用戶(hu)需求的用熱設(she)備和用熱系(xi)統“熱能中心(xin)”,以達到最佳效(xiao)果,全過程,全方(fang)位服務于人造板(ban)企(qi)業
我公司(si)愿與鍋爐熱(re)能同(tong)行一道為人造板生(sheng)產企業的用熱(re)設備(bei)“熱(re)能中心(xin)”的能效,環保,發展作出貢獻。