光(guang)熱(re)(re)(re)發(fa)電的基(ji)本(ben)原(yuan)理:通(tong)常(chang)一個(ge)光(guang)熱(re)(re)(re)電站分(fen)為集熱(re)(re)(re)鏡場,儲熱(re)(re)(re)系統,常(chang)規島三個(ge)部分(fen)。集熱(re)(re)(re)鏡場的原(yuan)理與太(tai)陽灶類似,無(wu)數(shu)面定日鏡(jing)將收集(ji)到(dao)的陽(yang)光(guang)反射(she)到(dao)集(ji)熱塔上,集(ji)熱塔上有一個(ge)吸(xi)熱器,儲熱系統低溫罐中的熔鹽(通常是(shi)290℃)被泵到(dao)吸(xi)熱器中吸(xi)收能量,溫度升高(通常是(shi)565℃),流(liu)入到(dao)高溫罐之中,并儲存起來(lai)。
在需(xu)要的時候,高溫(wen)罐熔鹽可(ke)以泵出,與水(shui)換(huan)熱,產生蒸汽,推(tui)動汽輪機(ji)發電(dian),這一部分原理與常規(gui)火電(dian)類似,被(bei)稱為常規(gui)島,這就是塔式熔鹽光(guang)熱電(dian)站(zhan)的基(ji)本流程
為實現(xian)太(tai)陽(yang)(yang)能(neng)(neng)發電站(zhan)的(de)持(chi)續運行(xing),必(bi)須把(ba)白天收(shou)(shou)集到的(de)太(tai)陽(yang)(yang)能(neng)(neng)儲(chu)存起來,到晚(wan)上再用(yong)。白天,光熱(re)(re)電站(zhan)主要是(shi)利用(yong)集熱(re)(re)器(qi)收(shou)(shou)集太(tai)陽(yang)(yang)能(neng)(neng)光熱(re)(re)從而加熱(re)(re)傳熱(re)(re)介質(zhi)熔鹽,晚(wan)上,傳熱(re)(re)介質(zhi)熔鹽再通過換熱(re)(re)設備加熱(re)(re)水產(chan)生高溫(wen)高壓的(de)過熱(re)(re)蒸(zheng)汽去推動汽輪機發電。熔鹽熱(re)(re)能(neng)(neng)儲(chu)能(neng)(neng)裝置(zhi)是(shi)一種(zhong)將太(tai)陽(yang)(yang)能(neng)(neng)收(shou)(shou)集后儲(chu)存起來的(de)綜(zong)合系(xi)統。由(you)換熱(re)(re)設備、高溫(wen)儲(chu)罐(guan)、低溫(wen)儲(chu)罐(guan)、輸送泵、閥門(men)、管(guan)線(xian)、自動控制裝置(zhi)組成。
對(dui)于帶有熔(rong)(rong)鹽儲(chu)能的光熱電站,其關鍵技術是(shi)如(ru)何把大(da)量固(gu)(gu)態熔(rong)(rong)鹽快速安全地熔(rong)(rong)化(hua)后注(zhu)入(ru)系統(tong)和如(ru)何讓(rang)大(da)量熔(rong)(rong)化(hua)后的熔(rong)(rong)鹽維持一定的溫度不凝固(gu)(gu)。其核(he)心(xin)系統(tong)就(jiu)(jiu)是(shi)化(hua)鹽系統(tong),核(he)心(xin)裝(zhuang)置就(jiu)(jiu)是(shi)燃氣熔(rong)(rong)鹽爐
化鹽系統(tong)工藝流(liu)程說明(ming) :
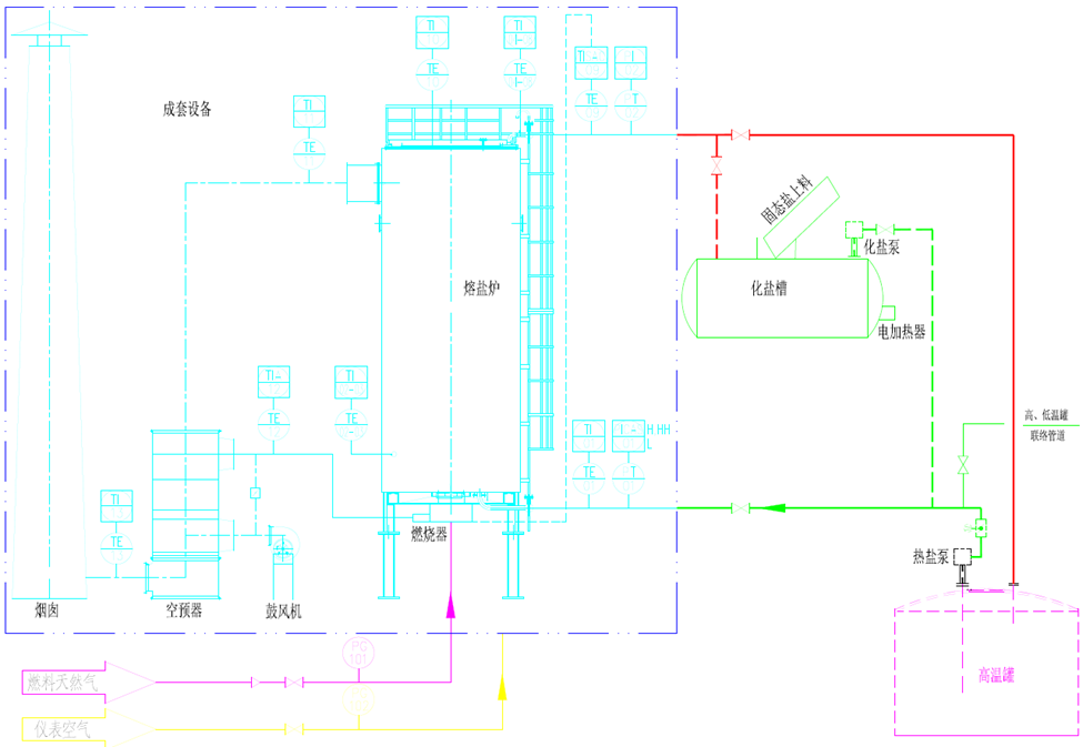
圖(tu)1 化(hua)鹽系統流程示意(yi)圖(tu)
1.
化(hua)鹽(yan)系(xi)(xi)(xi)統(tong)工藝流(liu)程如(ru)圖(tu)1所示,包括:熔(rong)鹽(yan)破碎加料系(xi)(xi)(xi)統(tong)(破碎機和熔(rong)鹽(yan)輸運機)、熔(rong)鹽(yan)槽化(hua)鹽(yan)系(xi)(xi)(xi)統(tong)、熔(rong)鹽(yan)爐(lu)加熱(re)系(xi)(xi)(xi)統(tong)、冷卻水(shui)系(xi)(xi)(xi)統(tong)、蒸(zheng)汽/煙風排放系(xi)(xi)(xi)統(tong)及排污系(xi)(xi)(xi)統(tong)。具體化(hua)鹽(yan)流(liu)程如(ru)下:
(1)初(chu)始投鹽階(jie)段(duan):叉車(che)運送噸袋包裝(zhuang)的(de)固(gu)態(tai)熔(rong)(rong)鹽從破碎機加(jia)(jia)料(liao)口投入,破碎后的(de)熔(rong)(rong)鹽通過(guo)熔(rong)(rong)鹽輸運機運送至化鹽槽加(jia)(jia)鹽口(安裝(zhuang)有加(jia)(jia)料(liao)斗)投入,初(chu)始投入一定(ding)量固(gu)態(tai)混合鹽,采(cai)用外部加(jia)(jia)熱裝(zhuang)置熔(rong)(rong)化至液態(tai)。
(2)持(chi)續(xu)投鹽階(jie)段(duan):啟動熔鹽爐(lu)、熔鹽泵和(he)攪拌(ban)器,上料系統持(chi)續(xu)從加鹽口(kou)投鹽。保持(chi)熱鹽的循環和(he)固態鹽的投入(ru),維持(chi)化鹽槽內熔鹽的液位和(he)溫度(在290±5℃),直至(zhi)所有固態熔鹽全部(bu)熔化進入(ru)熔鹽罐。
(3)升(sheng)溫階(jie)段:熔(rong)鹽(yan)(yan)罐340℃熔(rong)鹽(yan)(yan)通過熔(rong)鹽(yan)(yan)爐(lu)進(jin)一(yi)步加(jia)熱升(sheng)溫至550℃。
化鹽設備系統(tong)功能是將固態熔(rong)鹽加熱熔(rong)化并升溫至550℃,化鹽系統主要設備說明如下:
(1)熔鹽爐:載(zai)熱介質為(wei)熔鹽的熱載(zai)體(ti)加熱爐,用于加熱液態熔鹽;
(2)化鹽槽(cao):用于存儲(chu)高(gao)溫熔(rong)鹽的槽(cao)類容器;
(3)化鹽泵:用(yong)于(yu)提供壓(ya)頭使熔鹽在爐管(guan)和管(guan)道系(xi)統中進行循環流(liu)動的泵類設(she)備;
(4)攪拌器:用于化鹽(yan)過(guo)程(cheng)中,對(dui)化鹽(yan)槽內(nei)固液熔鹽(yan)均勻混(hun)合的器件;
(5)破(po)(po)碎機:用于熔鹽加料時,對板結的(de)熔鹽物料進行破(po)(po)碎的(de)設備(bei);
(6)熔(rong)鹽輸運機:用(yong)于(yu)熔(rong)鹽加料時,對熔(rong)鹽物料進行傳輸的裝置。
燃氣熔(rong)鹽爐(lu)是光熱發(fa)電項目上(shang)的核心加熱設備(bei)
燃氣熔鹽(yan)(yan)爐化(hua)鹽(yan)(yan)系(xi)統流(liu)程示意圖如下:

燃氣熔鹽爐化鹽系(xi)統供(gong)貨清單
序號 | 設備名稱 | 數量(liang) | 規格型號 | 備注 |
1 | 熔鹽(yan)爐(lu) | 1 | 熔鹽爐材質 | 含支撐 、煙(yan)道防爆門(men)、平臺、扶(fu)梯、保(bao)護及防雨等結構,一次儀表,電控柜 |
S347H爐管,S304爐殼 | ||||
2 | 燃燒器(qi) | 1 | 含燃燒器(qi)閥組、鼓(gu)風機,本體(ti)自帶控制柜等 | |
3 | 空氣預熱(re)器(qi) | 1 | 12Cr1MoVG管子 | 熔鹽爐配套 |
4 | 煙囪及煙氣管道 | 1 | 熔鹽爐配套 | |
5 | 化鹽(yan)槽 | 1 | 主體材(cai)料S347H,墊板S347H,支座采(cai)用S304,煙(yan)囪(cong)為碳鋼(gang)。 | 含化鹽槽(cao)加鹽口漏(lou)斗、煙囪、含保(bao)溫 |
6 | 化鹽(yan)槽(cao)風機(ji) | 1 | 耐溫不低于300℃ | |
7 | 攪拌器 | 1 | 雙層槳葉 | 液(ye)下材質為不銹鋼304 |
8 | 熔鹽泵 | 2 | 一(yi)用一(yi)備,匹(pi)配熔鹽爐循(xun)環量,設計溫度不低(di)于(yu)565℃, | |
9 | 皮帶運輸機 | 1 | 單臺上料能力不低于(yu)系統要求 | 含加(jia)料斗、防護(hu)罩(zhao)等 |
10 | 破碎(sui)機 | 1 | 單臺上料能(neng)力不低于(yu)系統要(yao)求 | 含支(zhi)撐結(jie)構和入口漏斗(dou)等 |
作(zuo)者:常州市(shi)上能鍋爐有限公司芮亞平,咨詢電話:0519-82052399
上一篇:熔鹽爐
下一篇:沒有了!