固(gu)堿蒸(zheng)發,濃縮,是以高溫熔鹽作(zuo)為堿蒸(zheng)發熱源(yuan),取(qu)代傳(chuan)統(tong)的用(yong)火(huo)直接(jie)加熱的操作(zuo)過程,滿足了降膜法(fa)燒堿濃縮工藝(yi)對燃料的嚴(yan)格要(yao)求(qiu)。
常州(zhou)市(shi)上能鍋爐(lu)有限(xian)公司是專業(ye)生產(chan)制造(zao)熔鹽爐(lu)的廠家,出廠的熔鹽爐(lu)取代了國內早期從<瑞士博特化(hua)工裝(zhuang)置有(you)限公司>(Bertrams Chemical Plants Ltd )進口(kou)的熔(rong)鹽加(jia)熱(re)系統(tong)中(zhong)的熔(rong)鹽加(jia)熱(re)爐。
請關注常州市上(shang)能鍋爐(lu)(lu)公(gong)司網站上(shang)熔(rong)鹽爐(lu)(lu)產品信息(xi)。racwe.cn,聯系電話:13815029577(與(yu)微信同號)
一、固堿(jian)蒸發工藝:
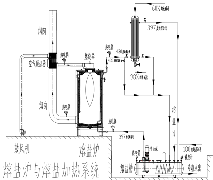
由電解工序來的32%液堿,經(jing)32%液(ye)堿泵加入到Ⅰ效降膜蒸(zheng)發器,蒸(zheng)濃到44%,再(zai)由(you)44%液堿泵(beng)經堿換熱器預熱到100℃,加入(ru)到Ⅱ效降膜(mo)蒸發器(qi)濃到50%,加入到Ⅲ效(xiao)降膜濃縮器,被熔鹽加熱(re)爐來的熔鹽加熱(re)蒸(zheng)發(fa)到98%,此熔融堿經片(pian)堿機冷卻(que)制(zhi)成片(pian)堿去(qu)包裝出廠。
二、熔鹽爐(lu),熔鹽加熱爐(lu)裝置生(sheng)產工(gong)藝特點(dian):
熔鹽(yan)經泵(beng)自熔鹽(yan)槽通過(guo)燃燒天燃氣的強制循環熔鹽(yan)加(jia)熱(re)爐(lu)進行(xing)循環,加(jia)熱(re)至430℃.煙道氣(qi)將(jiang)在(zai)燃(ran)燒器中通(tong)過熱(re)輻射和對流(liu)(liu)產生(sheng)的(de)熱(re)量(liang)傳遞給熔(rong)鹽(yan)(yan)。從熔(rong)鹽(yan)(yan)爐出(chu)來后,熔(rong)鹽(yan)(yan)循環(huan)至最(zui)終濃縮(suo)器的(de)下部(bu)收(shou)集管,并(bing)均勻地分配至各濃縮(suo)降(jiang)膜管,在(zai)降(jiang)膜管內,鹽(yan)(yan)流(liu)(liu)與堿流(liu)(liu)逆向流(liu)(liu)動(dong)。熔(rong)鹽(yan)(yan)加熱(re)使堿濃度從62.2%左右(you)升高到98%左右(you),冷卻的(de)熔(rong)鹽(yan)(yan)通(tong)過重力作用從最(zui)終濃縮(suo)器出(chu)口(kou)向下流(liu)(liu)人熔(rong)鹽(yan)(yan)槽。助(zhu)燃(ran)空(kong)氣(qi)風機為燃(ran)燒器提供經(jing)過預熱(re)的(de)約220℃助燃熱(re)空氣(qi)(qi)進(jin)燃燒器,提高爐膛(tang)溫度,節(jie)省使用成(cheng)本(ben)。助燃空氣(qi)(qi)在助燃空氣(qi)(qi)預(yu)熱(re)器中通過(guo)煙(yan)道氣(qi)(qi)被加熱(re)至(zhi)約220℃之(zhi)后(hou),冷卻后(hou)的(de)煙(yan)道氣通過煙(yan)囪(cong)排向大氣。
三、熱載體熔鹽(yan)介(jie)紹(shao):
熔鹽作為加熱系統中的熱載體,是由53% KNO3、7%NaNO3和40%NaNO2組成的共晶體,其熔點為142℃,沸點為680℃,450℃時的密度為1804kg/m3,熱容為1.520 kJ/(kg·℃),平均相對分子量為(wei)89.2,熔融(rong)熱18kcal/kg,,由此可知熔鹽是(shi)一種由化學純硝(xiao)酸鹽混合體組成的低(di)共熔(rong)點混合物(wu),具有良好的導熱性、流(liu)動性和均熱性,因此常用來作為載熱體介質。
粉狀的鹽類(lei)放入熔(rong)鹽槽,通(tong)過槽內安裝(zhuang)的中壓蒸汽(電(dian)加(jia)熱器)加(jia)熱融化為(wei)液態(tai),直加(jia)熱到槽內熔(rong)鹽的粘(zhan)度可以用(yong)循(xun)環(huan)泵打循(xun)環(huan)狀態(tai)后,送到加(jia)熱爐進一(yi)步循(xun)環(huan)升溫,達(da)到可以使用(yong)的溫度。
熔(rong)(rong)鹽(yan)槽(cao)的(de)(de)容積,必須充(chong)分考慮(lv)粉狀鹽(yan)熔(rong)(rong)操(cao)作增加的(de)(de)容量及停(ting)止(zhi)運行時(shi)高(gao)溫熔(rong)(rong)鹽(yan)的(de)(de)排放量,熔(rong)(rong)鹽(yan)槽(cao)必須以(yi)一(yi)定的(de)(de)方(fang)式控制,以(yi)保證槽(cao)內保持一(yi)定的(de)(de)溫度。
熔鹽載熱(re)體系(xi)統的配(pei)管設計,設備的構造很(hen)重要。若(ruo)載體在系(xi)統內出現(xian)滯留(liu)因放熱(re)而固化(hua),則可(ke)引起加熱(re)管的堵塞。當運行停(ting)止時,循環(huan)系(xi)統內的載體要排入熔鹽槽。
四(si)、熔鹽加熱(re)爐裝(zhuang)置主要(yao)由熔鹽循環供熱(re)系統(tong)、燃(ran)燒(shao)系統(tong)、電(dian)氣控制系統(tong)組成。

熔鹽(yan)爐本體,熔鹽(yan)槽,熔鹽(yan)泵及有關輸送(song)管(guan)線、閥門等構成熔鹽(yan)爐供熱循(xun)環系統(tong);
爐(lu)本(ben)體、燃燒器(qi)、空氣預熱器(qi),煙(yan)道(dao),煙(yan)囪(cong)等組(zu)成熔鹽爐(lu)燃燒節能系統;
電(dian)氣(qi)控(kong)制柜(ju)及有關測溫元(yuan)件(jian)組成熔鹽爐電(dian)氣(qi)控(kong)制系統。
五(wu)、熔鹽加熱系統中主(zhu)要設備介(jie)紹(shao):
主(zhu)要(yao)設備有:熔(rong)鹽加熱(re)爐(lu)本體、燃(ran)燒器、空氣預(yu)熱(re)器,熔(rong)鹽槽、熔(rong)鹽泵、
① 熔鹽加熱爐的基本操作模式,爐本體結構、爐管規格材質介紹:
1.熔鹽(yan)爐在控制室里遠程(cheng)控制熔鹽(yan)爐的啟動、燃(ran)燒和停(ting)止(zhi)的全部(bu)過(guo)程(cheng),以及供熱量(liang)的全部(bu)調節(jie)過(guo)程(cheng),在熔鹽(yan)爐安裝的現場為全自動操作(zuo)。
2.熔鹽(yan)爐(lu)(lu)為立式(shi)圓筒(tong)螺旋盤(pan)(pan)(pan)(pan)管(guan)(guan)(guan)結構(gou),其受熱(re)(re)面由(you)(you)(you)內,外(wai)(wai)二(er)層(ceng)(ceng)螺旋盤(pan)(pan)(pan)(pan)管(guan)(guan)(guan)及頂(ding)(ding),底(di)盤(pan)(pan)(pan)(pan)管(guan)(guan)(guan)組成,燃燒(shao)器置于爐(lu)(lu)頂(ding)(ding)中心。高溫煙氣由(you)(you)(you)上(shang)而下與頂(ding)(ding)盤(pan)(pan)(pan)(pan)管(guan)(guan)(guan),內層(ceng)(ceng)盤(pan)(pan)(pan)(pan)管(guan)(guan)(guan)和(he)底(di)盤(pan)(pan)(pan)(pan)管(guan)(guan)(guan)輻射換(huan)(huan)熱(re)(re)后,再(zai)從內層(ceng)(ceng)盤(pan)(pan)(pan)(pan)管(guan)(guan)(guan)底(di)部(bu)由(you)(you)(you)下而上(shang)進入內,外(wai)(wai)二(er)層(ceng)(ceng)盤(pan)(pan)(pan)(pan)管(guan)(guan)(guan)之間(jian)所(suo)構(gou)成的(de)(de)第一對(dui)流(liu)換(huan)(huan)熱(re)(re)區(qu),經對(dui)流(liu)換(huan)(huan)熱(re)(re)后從外(wai)(wai)層(ceng)(ceng)盤(pan)(pan)(pan)(pan)管(guan)(guan)(guan)上(shang)部(bu)進入外(wai)(wai)盤(pan)(pan)(pan)(pan)管(guan)(guan)(guan)與殼體之間(jian)所(suo)構(gou)成的(de)(de)第二(er)對(dui)流(liu)換(huan)(huan)熱(re)(re)區(qu),由(you)(you)(you)上(shang)而下對(dui)流(liu)換(huan)(huan)熱(re)(re)后,由(you)(you)(you)殼體下部(bu)排煙口(kou)排出。熔鹽(yan)由(you)(you)(you)下聯(lian)(lian)箱進入爐(lu)(lu)體,在(zai)爐(lu)(lu)內吸收熱(re)(re)量后,從上(shang)聯(lian)(lian)箱排出。外(wai)(wai)盤(pan)(pan)(pan)(pan)管(guan)(guan)(guan)和(he)底(di)盤(pan)(pan)(pan)(pan)管(guan)(guan)(guan)支承在(zai)爐(lu)(lu)底(di)盤(pan)(pan)(pan)(pan)管(guan)(guan)(guan)支架上(shang),內盤(pan)(pan)(pan)(pan)管(guan)(guan)(guan)和(he)頂(ding)(ding)盤(pan)(pan)(pan)(pan)管(guan)(guan)(guan)由(you)(you)(you)吊掛裝置吊掛在(zai)殼體上(shang)。
盤管采(cai)用(yong)12Cr1MoV高溫高壓鍋爐鋼管,制(zhi)作時為緊密排(pai)列。爐管對接(jie)采(cai)用(yong)氬弧焊(han),施焊(han)前對坡口檢查(cha)并(bing)預熱(re),焊(han)后(hou)做退火處理消除焊(han)接(jie)和(he)加工引起的應力。焊(han)后(hou)進行射線(xian)探傷(shang)(shang)檢查(cha),探傷(shang)(shang)比例:盤管100%,集管100%。射線(xian)探傷(shang)(shang)按(an)JB/T4730標準進行,二級以(yi)上合格。
盤(pan)管(guan)彎制(zhi)完畢后作整體熱處理,以消除加(jia)工后的(de)(de)殘余(yu)應(ying)力(li)(li)。同(tong)時(shi)爐管(guan)還(huan)應(ying)作通球和液壓試(shi)驗(yan),通球試(shi)驗(yan)方法按JB/T1611-1993中5.2條進行試(shi)驗(yan),液壓試(shi)驗(yan)時(shi)每層盤(pan)管(guan)的(de)(de)水壓試(shi)驗(yan)壓力(li)(li)為(wei)2.6MPa,整體組裝后再進行壓力(li)(li)試(shi)驗(yan),壓力(li)(li)為(wei)1.95MPa,盤(pan)管(guan)的(de)(de)最高工作壓力(li)(li)為(wei)1.3MPa.
爐底設置(zhi)人孔及視(shi)鏡,定期(qi)對(dui)熔鹽(yan)加熱(re)爐檢(jian)查及運行中觀察爐內火焰(yan)燃(ran)燒狀況。
②熔鹽加熱爐燃燒器介紹:
對于國內早期(qi)從瑞士(shi)博特(te)瑞姆斯公司(Bertrams Chemical Plants Ltd )進口的熔鹽加熱爐,已出現熔(rong)鹽加(jia)熱爐盤管堵(du)塞,爐管損壞的客戶,可以換熔(rong)鹽(yan)加熱爐的(de)(de)爐本體,燃燒器(qi)可以照(zhao)舊利用。瑞(rui)士博特瑞(rui)姆斯公司(si)進口的(de)(de)熔(rong)鹽(yan)加熱爐燃燒器(qi)為(wei)氫氣(qi)燃燒器(qi)具(ju)多,固堿生產廠家,有自產的(de)(de)氫氣(qi)。
根據項目(mu)工藝特點(dian)和(he)系統(tong)可(ke)靠性,我(wo)們選用意大(da)利進口(kou)分體型低(di)氮(dan)燃(ran)(ran)(ran)(ran)氣燃(ran)(ran)(ran)(ran)燒(shao)器(qi)(燃(ran)(ran)(ran)(ran)燒(shao)頭與風機分開(kai)),滿(man)足頂燃(ran)(ran)(ran)(ran)向下布置(zhi) ,燃(ran)(ran)(ran)(ran)燒(shao)器(qi)具(ju)有性能(neng)優良,操(cao)作維護(hu)方便,燃(ran)(ran)(ran)(ran)燒(shao)林克(ke)曼黑度(du)為(wei)0。燃(ran)(ran)(ran)(ran)燒(shao)器(qi)盡可(ke)能(neng)減少(shao)燃(ran)(ran)(ran)(ran)燒(shao)過(guo)程(cheng)中產生的(de)氧化氣,具(ju)有低(di)NOX燃(ran)(ran)(ran)(ran)燒(shao)技術,NOx≤50毫(hao)克(ke)/m3,煙(yan)氣排放符合(he)當地的(de)《鍋(guo)爐大(da)氣污染物排放標準》要求,燃(ran)(ran)(ran)(ran)燒(shao)器(qi)拆卸方便,具(ju)有自(zi)控和(he)點(dian)火(huo)、熄(xi)火(huo)、空氣吹掃等(deng)安全聯鎖(suo)保護(hu)裝置(zhi)。
燃燒(shao)器是由(you)幾大(da)模塊結構組合(he)而成(cheng),主要有①燃燒器② 鼓風機③控制器
為保證充分(fen)燃(ran)(ran)(ran)燒(shao),燃(ran)(ran)(ran)燒(shao)器機頭(tou)采(cai)用帶有喉口(kou)結構(gou);助燃(ran)(ran)(ran)空氣通道采(cai)用環式結構(gou),分(fen)主燃(ran)(ran)(ran)燒(shao)風(feng)和中心旋流風(feng),增加燃(ran)(ran)(ran)料氣與助燃(ran)(ran)(ran)空氣的充分(fen)混合(he),同時(shi)保證火焰的穩定性。
燃燒(shao)器采(cai)用(yong)比例調節控(kong)制(zhi),具有(you)燃燒(shao)程序控(kong)制(zhi), 比例調節控(kong)制(zhi)和安全(quan)保護控(kong)制(zhi)等功能(neng).可(ke)設有(you)自動和手動功能(neng),運行安全(quan)可(ke)靠。
燃(ran)燒器有火焰探頭檢(jian)測(ce)火焰,能檢(jian)測(ce)到(dao)的火焰強度信(xin)號,聯鎖(suo)控(kong)制(zhi)熔鹽(yan)爐的停爐。
有關(guan)(guan)燃燒(shao)器(qi)詳細(xi)內容見燃燒(shao)器(qi)相關(guan)(guan)資料(liao)并符《燃燒(shao)器(qi)型式試驗報告》
③ 空氣預熱器介紹(shao):
空氣預熱器(qi):
熔鹽加熱爐(lu)出煙口處設置空氣預熱器(qi)作為(wei)余熱回收裝置,所預熱的(de)空氣,溫度達200℃左(zuo)右,作為助燃熱空(kong)氣(qi),提(ti)高爐(lu)膛溫度,節(jie)省燃料成本。熔鹽(yan)爐(lu)出煙口處煙氣(qi)溫度在450℃左右(you),經空預器換熱利用,最(zui)終排煙(yan)溫度小(xiao)于200℃以下,有效利用了余熱。
空(kong)氣(qi)(qi)預熱器(qi)結構型式(shi):鍋(guo)殼(ke)煙管式(shi)結構,換熱管材(cai)質(zhi):GB3087鍋(guo)爐(lu)鋼(gang)管,煙氣(qi)(qi)走(zou)管程(cheng),空(kong)氣(qi)(qi)走(zou)殼(ke)程(cheng)。
④熔(rong)鹽(yan)加熱(re)爐(lu)熔(rong)鹽(yan)儲槽介紹:
熔鹽(yan)儲槽在(zai)供熱系統中起著儲鹽(yan)、熱膨脹(zhang)和(he)排氣(qi)功能(neng)。熔鹽槽容積除根據整個熔鹽系統的熔鹽量外,還必需結合熔鹽泵的流量、安裝和汽蝕特性等一并考慮;系統啟動時,將粉態熔鹽放入,固態的熔鹽在此被加熱變為液態熔鹽,停車時系統中的熔鹽又全部回流到槽中。熔鹽槽內放置多組電加熱器或者中壓蒸汽,<蒸(zheng)汽壓力(li)為(wei)1.0MPa,飽和(he)蒸(zheng)汽溫度為(wei)184℃,壓力為0.8MPa,飽和蒸汽(qi)溫度為175℃>,作啟動時熔化熔鹽所用。(固堿(jian)生(sheng)產(chan)廠(chang)家,有蒸汽(qi)鍋(guo)爐)
熔(rong)鹽(yan)(yan)(yan)量(liang)根據用(yong)戶提供(gong)的(de)用(yong)熱(re)設備(換熱(re)器)的(de)容積+熔(rong)鹽(yan)(yan)(yan)爐自(zi)身的(de)容積之(zhi)和,確定熔(rong)鹽(yan)(yan)(yan)儲(chu)槽(cao)的(de)大(da)小,介質為三元(yuan)熔(rong)鹽(yan)(yan)(yan),設計壓力0.6MPa,設計溫度450℃,熔(rong)鹽(yan)(yan)(yan)槽(cao)材質為:Q345R,GB713。熔(rong)鹽(yan)(yan)(yan)槽(cao)上(shang)設有加(jia)鹽(yan)(yan)(yan)口,熔(rong)鹽(yan)(yan)(yan)泵接口,熔(rong)鹽(yan)(yan)(yan)回(hui)流(liu)口,放空口及(ji)中(zhong)壓蒸汽接管等(deng),槽(cao)體上(shang)裝有雙金屬溫度計,熱(re)電(dian)偶溫度計,現場目測熔(rong)鹽(yan)(yan)(yan)槽(cao)內熔(rong)鹽(yan)(yan)(yan)的(de)溫度及(ji)控制(zhi)面板上(shang)數顯溫度。熔(rong)鹽(yan)(yan)(yan)槽(cao)安裝于地(di)坑(keng)中(zhong),具(ju)體見熔(rong)鹽(yan)(yan)(yan)槽(cao)圖紙及(ji)系(xi)統圖。注:熔(rong)鹽儲槽由固堿生產廠(chang)家自(zi)備。
⑤高溫熔鹽泵介紹(shao):
熔鹽泵是(shi)整個供熱系統循環的(de)動(dong)力設備,最(zui)好是(shi)一用一備。熔鹽泵的(de)流量,揚程由(you)熔鹽(yan)加熱(re)爐廠家(jia)提供的熔鹽(yan)加熱(re)爐技(ji)術參數決(jue)定,用戶向熔鹽泵廠(chang)家自購(gou)。
六、熔鹽加(jia)熱爐控制系(xi)統介紹:
熔(rong)鹽爐(lu)控制(zhi)系統分(fen)為動力控制(zhi),空管(guan)預熱控制(zhi),儀表顯示控制(zhi),三部(bu)分(fen)組成。
1. 動力控制:
主要(yao)控(kong)制(zhi)熔鹽槽內的熔鹽循環泵、風機、燃燒(shao)器等設備的起(qi)動(dong)與(yu)停止,同時(shi)循環泵與(yu)燃燒(shao)器之間(jian)進行(xing)聯鎖(suo)控(kong)制(zhi)以保證加(jia)熱爐的安全運行(xing)。
熔鹽泵起動的條件是:熔鹽槽內熔鹽的溫度>180℃,熔鹽加熱爐內外盤管溫度>230℃,
燃燒器起動的條件是:熔鹽泵熔鹽介質循環,至熔鹽爐,至用熱設備,至熔鹽槽循環量正常,燃燒器才能投入正常運行。
2. 空管預熱控制:
燃燒器采用進口低氮燃燒器,該燃燒器具有大小可調的燃燒量,在空管預熱時,只采用最小量的燃燒,同時對熔鹽爐的上下及內外盤管都設點進行連鎖,一旦有一個點的溫度超過上限設定時,即停燃燒器,當回到下限設定值以下時,才能啟動燃燒器,只有當全部的點溫度都在上限設定值以下時,燃燒器小量才能工作。
3. 儀表(biao)控(kong)制:
熔鹽爐的負荷是根據智能儀表對熔鹽爐熔鹽出口溫度(即熔鹽槽(cao)內熔鹽的(de)溫(wen)度)的設置,通過儀表智能計算,進行 PID 調節功能, 自動調節燃(ran)料量與空氣供給量;同時聯鎖控制熔鹽爐的超溫,燃燒器的啟動與停止,以充分滿足控制要求,使其達到自動控制功能。
儀表顯示:熔鹽爐進出口熔鹽溫度顯示、爐本體排煙溫度顯示,熱風溫度顯示,熔鹽槽內熔鹽溫度顯示,實時(shi)數據監控,實現(xian)熔鹽爐(lu)的系統(tong)安全保(bao)護功能,使熔鹽(yan)爐保持安全運行。
4.通過電氣與儀表實時(shi)數據(ju)的監控(kong),對熔鹽(yan)爐主機(ji)燃燒檢測,安全(quan)控制技術方案說明如下:
4.1. 能自動(dong)檢測熔鹽(yan)爐(lu)進出口熔鹽(yan)的溫度、該值符合工作要求,則繼續確認燃氣是否有存在泄漏或壓力異常情況,如果一切正常則打開燃燒器風門至最大開度,進行前吹掃以清除可能殘留在爐膛內的燃氣,吹掃完畢,關小風門至點火負荷位置,然后發出點火信號,數秒后若火焰監測器檢測至火焰則說明點火成功,燃燒程控器慢慢打開主燃(ran)(ran)料電磁閥,燃(ran)(ran)燒器進(jin)行大(da)火焰燃(ran)(ran)燒直至出口熔鹽溫度接近設定值時進(jin)行溫度PID自(zi)動調節,調節(jie)燃料流量(liang),燃燒空氣量(liang),保證出口熔鹽溫度控制,滿(man)足工藝要求的范圍之內。
4.2. 本操作柜能對系統的所有參數進(jin)行(xing)自動檢測、控制, 并執行(xing)預報警、報警和自動停爐的保護功能,在(zai)運行過程中若熔鹽爐出口(kou)熔(rong)鹽(yan)溫度超溫(wen)則自(zi)動停爐,當出口(kou)油溫(wen)恢復(fu)到設(she)定區間之內時燃燒自(zi)動重(zhong)新點火燃燒,若出現熔鹽泵(beng)停(ting)機,燃料壓力異(yi)常情況時則(ze)自動停(ting)爐并發(fa)出聲光報警信號。
4.3.在設(she)計編(bian)程過程中(zhong)充分(fen)考慮(lv)了(le)加(jia)熱爐系統(tong)的安(an)全保(bao)護功能,確保(bao)加(jia)熱爐安(an)全高效(xiao)運行,設有以下聯鎖點:
1)熔鹽爐熔(rong)鹽出口溫度過高保護:在出熔鹽爐溫度高(gao)出(chu)設定值△t時,熔鹽爐(lu)報警并(bing)停燃(ran)燒(shao)器(qi),只有在溫(wen)度回落到設定值以(yi)下(xia)△t’時,燃(ran)燒(shao)器(qi)才重(zhong)新開始啟動。
2)爐體(ti)排煙溫度過高(gao)保護(hu):爐體排煙溫度(du)過高時,停爐并報警。
3)停火保護:在(zai)爐(lu)子啟動前自動檢(jian)測(ce)爐(lu)內有無火焰信(xin)號(hao),點著火之后,長期(qi)監視爐(lu)內火焰,一旦熄火,自動關閉(bi)電磁閥,報(bao)警并(bing)送出停火信(xin)號(hao)。
4)助燃空氣壓力(li)過低保護,燃燒器(qi)附有風壓開(kai)關進行(xing)聯鎖,一旦風壓過低即(ji)停燃燒器(qi)。
5)燃(ran)氣(qi)(qi)壓(ya)(ya)力過低或過高保護,燃(ran)燒(shao)器附有燃(ran)氣(qi)(qi)高壓(ya)(ya)和低壓(ya)(ya)開關,一旦氣(qi)(qi)壓(ya)(ya)過高或過低,則停(ting)燃(ran)燒(shao)器。
6)燃燒器自(zi)(zi)動(dong)檢漏,一旦泄(xie)漏,自(zi)(zi)動(dong)保護并送出(chu)泄(xie)漏信號。
7) 連鎖控制:在熔鹽爐運行過程中,必須保證整個系統的每個設備都是正常工作。一旦出現那個設備的參數出現不正常的變動,即進行停爐,并報警,以確保整個系統的安全運行。
5.在自(zi)動控制(zhi)系統的管理下,通過各系統的互(hu)相協調(diao),實現(xian)以下功能(neng):
l 為用熱(re)設(she)備提(ti)供滿足負荷要(yao)求的穩(wen)定高溫熱(re)源;
l 保持整個(ge)熱(re)系統穩定運行,實現(xian)不間(jian)斷連續運行;
l 實現熔(rong)鹽爐熱負(fu)荷自動(dong)調節(jie);
l 實現(xian)熔(rong)鹽爐在非正常(chang)工(gong)況(kuang)下的(de)安全聯鎖(suo)反饋(kui)保護;
l 具有各種非正常情況(kuang)下的預警(jing)、報警(jing)、故(gu)障鎖定等功能;
l 實現熔(rong)鹽爐(lu)開(kai)爐(lu)、停爐(lu)時(shi)風(feng)機自動吹掃功能(neng);
l 可實現自動無人運行。
采購熔鹽爐請關注(zhu)(上能公司網站: racwe.cn
Please pay attention to purchasing molten salt furnaces (website of Shangneng Company: racwe.cn)
歡迎國內外客戶前(qian)來(lai)我工廠考察指導,合作共贏!
Welcome domestic and foreign customers to come to our factory for inspection and guidance, cooperation and win-win!
聯系人:芮亞(ya)平(ping)手機號(hao)(hao)與微信(xin)號(hao)(hao)同號(hao)(hao):13815029577
Contact person: Rui Yaping. Phone number and WeChat ID are the same: 13815029577